امروز 16 مهر 1404
پلان پروژه سه واحدی ساختمان ۲ طبقهش

پلان پروژه سه واحدی ساختمان ۲ طبقهش
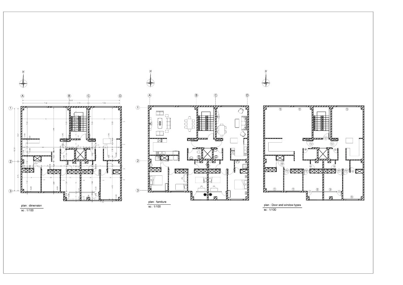
پلان پروژه سه واحدی ساختمان ۲ طبقه طراحی شده توسط arch studio
6 شهریور 1404
مهارتهای استفاده شده
6 شهریور 1404
پروژهها
